
XEM HÌNH ẢNH THỰC TẾ TÒA NHÀ THẢO ĐIỀN BUILDING TẠI ĐÂY
Văn phòng cho thuê Thảo Điền Building 25 Hoàng Hoa Thám tọa lạc tại 25 Hoàng Hoa Thám, phường 6, quận Bình Thạnh, kết cấu 3 hầm, 1 trệt, 10 tầng, khuôn viên đẹp, thoáng mát với đầy đủ dịch vụ và tiện ích văn phòng, thang máy hiện đại, điện dự phòng, hệ thống PCCC, camera quan sát, an ninh 24/7, rất phù hợp để đặt trụ sở, văn phòng làm việc. Cập nhật: 10/2021
Cho thuê văn phòng HCM Thảo Điền Building có vị trí thuận lợi, ngay bệnh viện Gia Định, khu tập trung nhiều building, cao ốc văn phòng, các trung tâm thương mại, tài chánh, hành chánh của quận Bình Thạnh, liền kề quận Phú Nhuận, chỉ mất 10 phút đi xe để đến sân bay Tân Sơn Nhất hay qua quận 1, gần nhà sách nhân văn, siêu thị Big C và các ngân hàng như: Bắc Á, Sacombank, HD Bank.
Tòa nhà văn phòng cho thuê quận Bình Thạnh Thảo Điền được Công ty Thảo Điền đầu tư xây dựng và đưa vào sử dụng vào tháng 5 năm 2011. Với trang thiết bị hiện đại,hệ thống đỗ xe tự động với 3 tầng xe ôtô, không gian thoáng đãng, tòa nhà là một sự lựa chọn phù hợp để làm văn phòng. Phụ trách cho thuê văn phòng tại Thảo Điền Building Công ty Cổ phần Địa Ốc Kim Quang. Hotline: 0946 395 665
Lưu ý: Giá thuê có thể thay đổi theo từng thời điểm, diện tích và vị trí văn phòng. Vui lòng liên hệ ngay ☎️ 0946.395.665 để cập nhật thông tin mới nhất.
MỘT VÀI HÌNH ẢNH VỀ VĂN PHÒNG CHO THUÊ THẢO ĐIỀN BUILDING:

Hình chụp tổng quan cho thuê văn phòng quận Bình Thạnh Thảo Điền building, thiết kế đẹp, hiện đại | Địa ốc Kim Quang.

Hình chụp diện tích trống tại cho thuê tòa nhà quận Bình Thạnh Thảo Điền building, thiết kế với không gian thoáng, nhiều ánh sáng | Địa ốc Kim Quang.

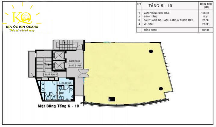
Hình chụp sơ đồ mặt bằng từng tầng của tòa nhà cho thuê văn phòng quận Bình Thạnh Thảo Điền building | Địa ốc Kim Quang.

Hình chụp hầm gửi xe tòa nhà cho thuê văn phòng quận Bình Thạnh Thảo Điền building rộng, sức chứa lớn | Địa ốc Kim Quang.
BỘ PHÂN CHĂM SÓC KHÁCH HÀNG:
Hotline: +84 946 395 665 hoặc: +84 28 66790 847
Email: karyna.kimquang@gmail.com
Kim Quang Office
cam kết : LUÔN CÓ SỰ LỰA CHỌN HOÀN HẢO CHO BẠN
(Văn phòng cho thuê quận Bình Thạnh - Kim Quang Office)
